- Bàn cầu của thương hiệu thiết bị vệ sinh TOTO
- Tên sản phẩm: Bồn cầu TOTO CS945DNE2 Hai Khối Nắp Êm, bồn cầu TOTO hai khối nắp rửa Eco-washer TCW07S
- Hệ thống xả: Siphon, Xả nhấn 2 chế độ
- Lượng nước xả: 4.8/3L
- Thiết kế: Thân dài
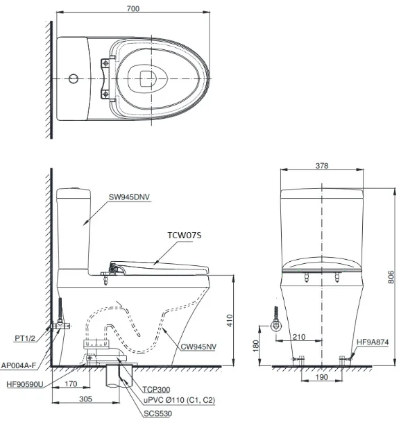
- Tâm xả: 305mm
- Kích thước: 700x378x806 mm
- Áp lực nước: 0.05MPa~0.75MPa
- Màu sắc: Màu trắng
- Bao gồm van khóa
Tính năng bàn cầu tự rửa CS945DNE2TOTO
- Bàn cầu nắp rửa cơ CS945DNE2 được thiết kế sang trọng
- Nắp đóng êm kèm vòi rửa nước lạnh Eco-washer
- Phù hợp lắp đặt với nắp rửa điện tử WASHLET (tùy chọn)
- Thiết kế bồn cầu thân kín, vành kín tiện dụng cho việc vệ sinh hàng ngày
- Tiết kiệm nước với chế độ xả 4.8L/3L
- Công nghệ CeFiONtect giúp lòng bàn cầu siêu nhẵn, hạn chế tối đa các vết bẩn, vi khuẩn
- Không cần điện
- Đơn giản, dể sử dụng
- Dể dàng lắp đặt với cả bồn cầu thân dài và thân tròn
Bồn cầu TOTO CS945DNE2 gồm có
- Thân cầu: C945 - Xuất xứ: Việt Nam
- Két nước: S945D - Xuất xứ: Việt Nam
- Nắp rửa cơ TCW07S (E2) - Xuất xứ: Inđônêxia
Bản vẽ bồn cầu CS945 nắp rửa cơ TCW07S TOTO

Đánh giá sản phẩm của chúng tôi